Expert ADU Services in San Francisco Bay Area

Transform your property with Plan Perfect Remodeling‘s expert ADU services in San Francisco Bay Area. Our team specializes in creating functional and stylish accessory dwelling units that meet your specific needs. Start your project with Plan Perfect Remodeling today.
Elevate Your Living Space

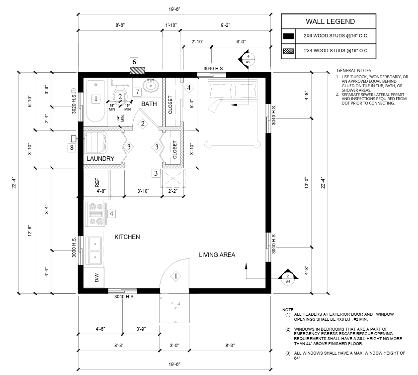
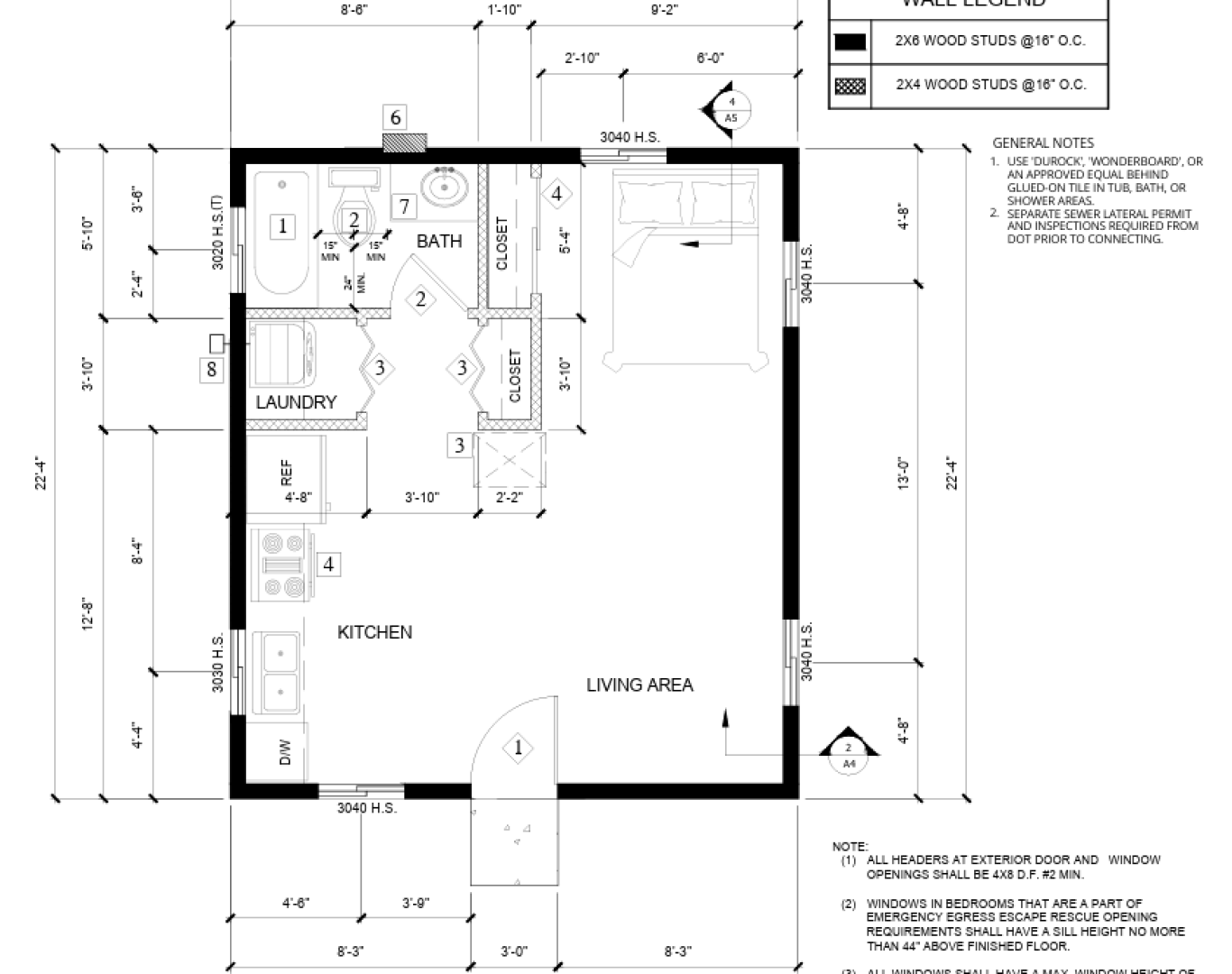
The Importance of Expert ADU Services in San Francisco Bay Area

ADU Services Near Me
Why Accessory Dwelling Units are a Smart Choice

Maximize Your Property with Plan Perfect Remodeling - Your Expert ADU Services in San Francisco Bay Area

Adu Services Near Me

Frequently Asked Questions

We hear these a lot. So, we figured we'd put the answers right here to save everyone some time. 

What are the zoning requirements for ADUs in San Francisco Bay Area?

Zoning requirements for ADUs in San Francisco Bay Area vary by municipality but generally include considerations for lot size, ADU size, and setback requirements. Plan Perfect Remodeling navigates these regulations to ensure your ADU meets all legal criteria.

An ADU can add value by providing additional living space, potential rental income, and increased property appeal. Plan Perfect Remodeling designs ADUs that complement your home’s aesthetics and meet market demands, maximizing your return on investment.

Yes, Plan Perfect Remodeling’s ADU services in San Francisco Bay Area are fully customizable, catering to special design requests such as sustainable building materials, accessibility features, and unique architectural styles, ensuring your ADU fulfills your specific requirements.